Realizzazione BIM di un edificio direzionale

edificio direzionale bimx archicad

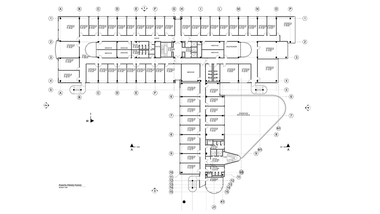
Edificio direzionale a Roma

  • PROGETTO: Architetto Mario Sacco (ArchiRADAR)
  • PARTNER: Studio Structura Srl

 

Restituzione in BIM di un progetto esistente a Roma per offerta migliorativa in gara d'appalto.

La restituzione del modello in BIM ha avuto l'obbiettivo di individuare le criticità del modello, al fine di proporre all'ente appaltante un'offerta più obbiettiva; lo stesso processo BIM proposto voleva essere un valore aggiunto da proporre all'ente appaltante al fine della verifica delle quantità e delle interferenze in fase di esecuzione.

 

 01 Pianta  02 Sezione  03 BIMx  04 BIMx  05 Foto 

 

Who's Online

We have 1356 guests and no members online

Utenti iscritti al sito

89745